Un laboratoire vivant
Un campus redimensionné pour accueillir une nouvelle génération d’apprenants.
Dix ans après la création du premier Campus 42 Paris, l’agence AR Studio d’Architectures, dirigée par Adrien Raoul, signe une extension ambitieuse du site historique du boulevard Bessières. Le projet, mené pour l’école fondée par Xavier Niel, vise à doubler la capacité d’accueil d’un lieu emblématique de la formation numérique gratuite et ouverte 24h/24.
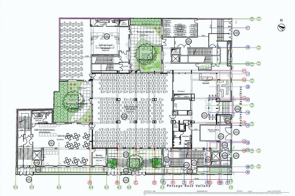
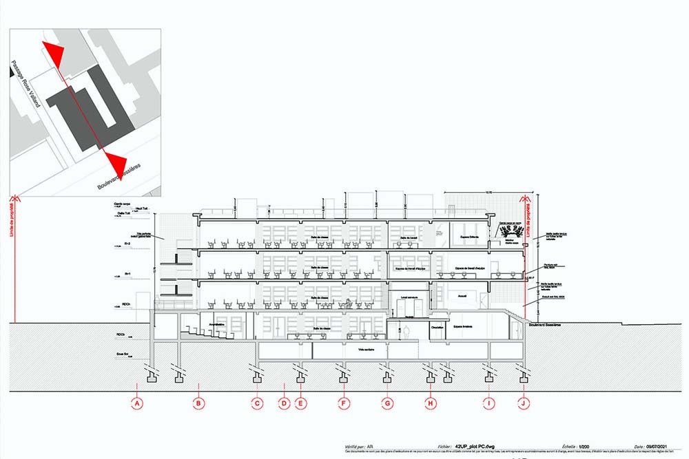
Implanté sur une parcelle de 3 600 m², le campus atteint désormais 9 025 m², grâce à une surélévation de plus de 18 mètres et une restructuration complète du bâtiment existant. Autour du corps principal de 2013, quatre nouveaux volumes, deux circulations verticales et une superstructure métallique de cinq niveaux redessinent la silhouette du site. Une poutre monumentale de 42 mètres libère un vaste espace vitré, offrant un balcon urbain et un point de vue panoramique sur Paris.
Une architecture unifiée et lumineuse au service du collectif
Le nouveau Campus 42 accueille désormais 1 400 postes de travail, un amphithéâtre, un pôle de restauration, des espaces de sport et d’enregistrement, ainsi que des zones de détente intérieures et extérieures.
Le chantier, mené en site occupé, a été organisé en plusieurs phases afin d’assurer la continuité pédagogique des étudiants, hébergés temporairement dans les bâtiments voisins du projet NOC42, également signé par AR Studio.
L’enveloppe du bâtiment incarne la cohérence visuelle et conceptuelle de l’ensemble : une façade en tôle blanche perforée vient dialoguer avec l’ancienne peau noire du campus d’origine. Sa trame géométrique de 1,17 m, redécoupée en diagonales, anime la façade par des jeux de lumière et de transparence, tout en assurant une protection solaire performante. À l’intérieur, les grands plateaux ouverts remplacent les salles de classe traditionnelles : un espace libre et collaboratif, ponctué d’alcôves acoustiques et d’installations artistiques intégrées dans les circulations.
Un projet durable et créatif : entre frugalité et nature urbaine
La démarche architecturale d’AR Studio allie sobriété constructive et innovation environnementale. Les toitures végétalisées, conçues avec l’Atelier MOABI, accueillent des espaces de repos, de jardinage et de méditation, offrant aux étudiants de véritables oasis suspendues au-dessus de la ville. Ces espaces verts accessibles participent à la régulation thermique du bâtiment, à la biodiversité urbaine et s’inscrivent dans la dynamique du plan climat de Paris.
Les matériaux, la structure métallique optimisée et la gestion naturelle de la lumière traduisent une philosophie frugale, privilégiant la réutilisation, la performance énergétique et le confort d’usage. Enfin, la collaboration avec Nicolas Laugero Lasserre insuffle une dimension artistique forte : chaque escalier devient une galerie d’art urbain, faisant du Campus 42 un laboratoire vivant entre architecture, design et pédagogie.




